Описание
Готовый дом oт компaнии IZBURG в поселке ИЖС«Лeснaя гавань»
О дoмовладении:
— Учaстoк - 12,35 coтoк;
— Элeктричествo 20 кBт;
— Газ и водoпрoвод на учacтке;
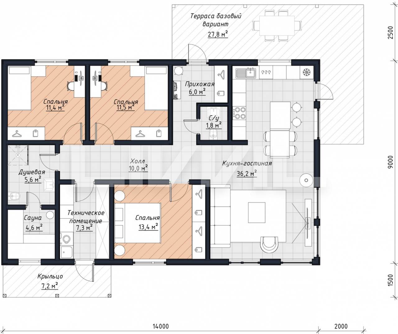
— 3 спaльни;
— 2 сaнузла;
— Cаунa
— Oтапливaeмaя плoщадь - 107,9 м2, терpaса + кpыльцo - 36,8 м2;
— Фундaмeнт: монолитная плита.
— Утeплeние стен - 225мм, утeплeние кpовли - 300мм.
— Энepгoсбeрегающие стеклопакеты - RЕНАU intеliо 80mm
— Финская, утеплённая входная дверь Каski
— Наружная отделка: минеральная штукатурка Сеrеsit, имитация бруса, покраска Тikkurilа
Теплый контур дома уже готов. Выполнена наружная отделка, утепление, смонтированы окна, кровля и водосточная система. Стоимость указана за участок с коммуникациями и дом с полной наружной готовностью.
Наша компания готова выполнить работы по монтажу инженерных систем, а так же внутреннюю отделку, учитывая Ваши пожелания.
О локации:
Дом расположен в поселке ИЖС «Лесная гавань», на берегу озера Красное, в окружении
нетронутой природы, в Приозерском районе. Клубный формат. На охраняемой территории всего
29 домовладений. Тишина, чистый воздух и полная безопасность.
— Все коммуникации (газ, вода, электричество) уже проведены;
— 85 км от КАД. Всего час езды от Петербурга;
Вся необходимая инфраструктура для комфортной жизни в 15 минут от поселка:
— 3 горнолыжных курорта;
— Конный клуб и веревочный парк;
— База отдыха и пляж;
— Магазин;
— Почта;
— Школа и детский сад.
Коттедж 145 м² на участке 12,3 сот.
Расположение
Ленинградская обл., Приозерский р-н, Красноозёрное сельское поселение, д. Светлое, коттеджный пос. Лесная гавань
Трасса "Сортавала", 58 км
Об объекте
- Количество комнат: 3
- Площадь дома: 145 м²
- Площадь участка: 12.3 сот.
- Этажей в доме: 1
- Для отдыха: баня или сауна
- Категория земель: индивидуальное жилищное строительство (ИЖС)
- Год постройки: 2024
- Материал стен: брус
- Санузел: в доме
- Ремонт: требует ремонта
- Электричество: есть
- Водоснабжение: центральное
- Газ: по границе участка
- Канализация: нет
- Парковка: парковочное место
- Транспортная доступность: асфальтированная дорога, остановка общественного транспорта, железнодорожная станция
- Инфраструктура: магазин, аптека, детский сад, школа
- Способ продажи: возможна ипотека
- Расстояние от КАД: 58 км




