- LV146
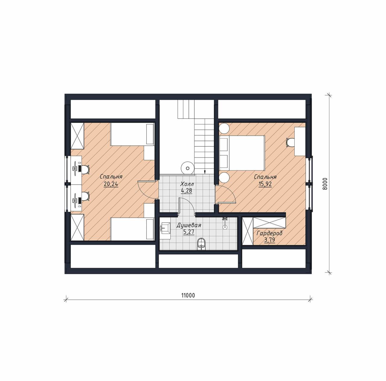
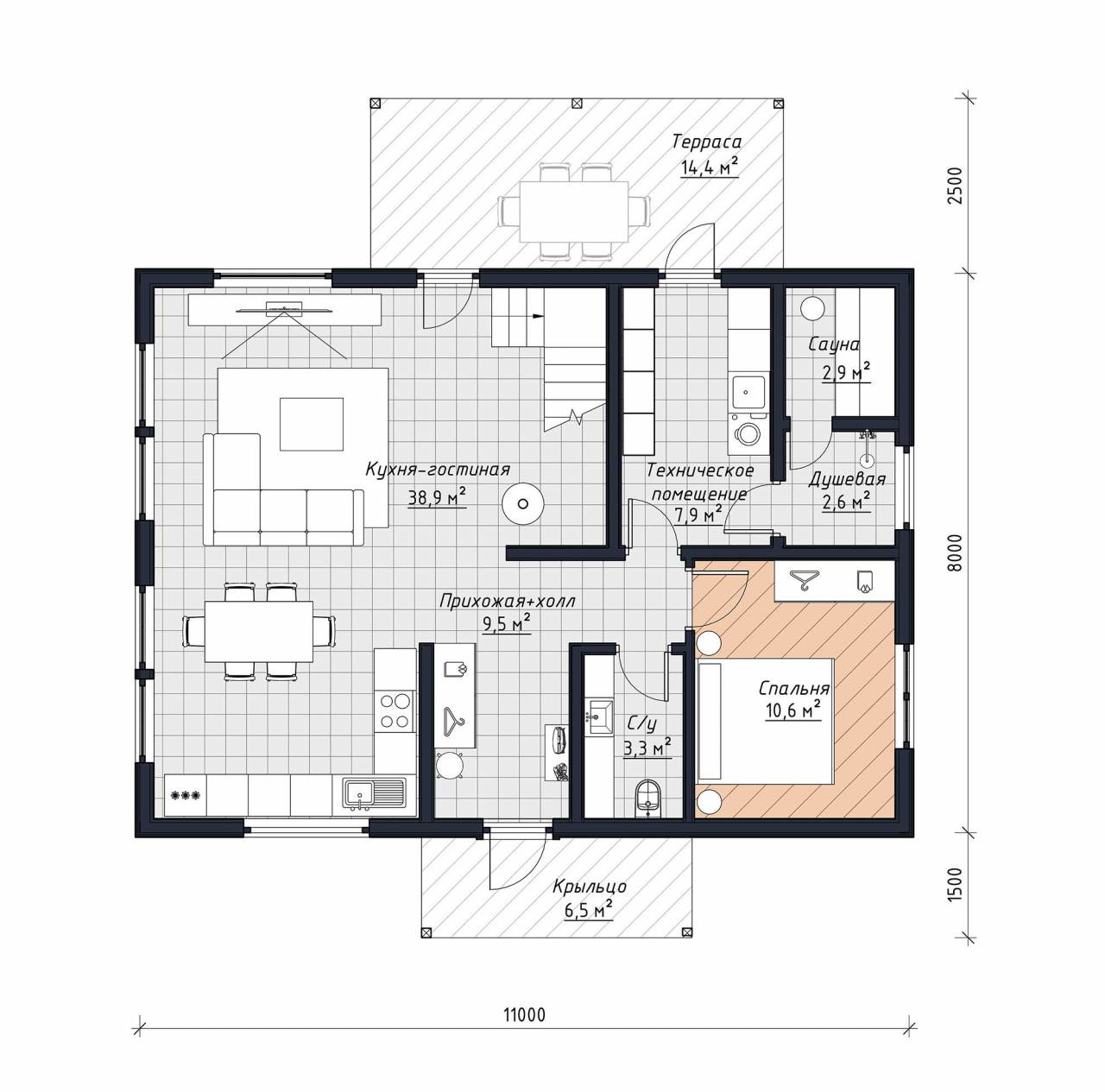
- Планировки
- Расчет стоимости
- от 9 301 037
от 6,1% *
| Подготовительные и земельные работы на участке | |
| Заливка монолитной фундаментной плиты | |
| Изготовление домокомплекта на производстве | |
| Доставка домокомплекта на участок | |
| Монтаж стеновых панелей и межэтажного перекрытия | |
| Монтаж кровельных панелей и кровельного покрытия | |
| Монтаж окон и входной двери | |
| Монтаж водосточной системы | |
| Монтаж инженерных коммуникаций | |
| Предчистовая отделка |
| 1. Заключение договора | 1 день |
| 2. Устройство фундамента на участке и производство панелей на заводе | 15 дней |
| 3. Возведение дома с внешней отделкой | 30 дней |
| 4. Монтаж инженерных сетей и Предчистовая отделка | 35 дней |
Дом Livvil — это готовое изделие, выполненное на ЧПУ с заводской точностью. При производстве домов, мы используем здоровую, качественную древесину камерной сушки. Закупаем сырье у ответственных поставщиков, которые ведут законную вырубку с последующим лесовосстановлением. А для предотвращения чрезмерного потребления природных ресурсов, учитываем стандартные размеры пиломатериалов, поэтому при строительстве дома почти не остается отходов.

Станок с ЧПУ Hundegger SpeedCut SC3 - для изготовления элементов стен и перекрытий

Поворотный стол Randek BS20 для монтажа панелей стен, кровли и перекрытий

Готовые кровельные панели

Готовые стеновые панели
Для удобства можно выделить три типа гарантии:
- на все несущие конструкции — 10 лет
- на фасадную отделку — 2 года
- на окна и кровлю — гарантия от производителя
- на инженерное оборудование - гарантия от производителя
- на внутреннюю отделку и инженерные работы - 1 год
- комплексное сервисное обслуживание
Оставьте заявку на сайте livvil.ru или свяжитесь с менеджером LIVVIL любым доступным способом. Напишите нам на электронную почту info@livvil.ru, позвоните по телефону +7 (812) 454-54-59 или оставьте заявку через мессенджеры +7 921 188-89-62 (WhatsApp/Telegram)
Для покупки дома LIVVIL вы можете воспользоваться ипотекой любого из банков-партнеров, мы аккредитованы в СБЕР и в Дом РФ, процесс получения кредита в этих банках для наших клиентов максимально упрощен.
Для заявки достаточно предоставить паспорт гражданина РФ, любой документ на выбор: СНИЛС/ водительское удостоверение/ удостоверение личности военнослужащего/ удостоверение сотрудника федеральных органов власти/ военный билет/ загранпаспорт и документ, подтверждающий доход.
Также для покупки дома LIVVIL можно использовать средства материнского капитала.























































